Ruimte voor Ruimte in Emmen

De afgelopen jaren hebben wij mee mogen werken aan de herbestemming van een locatie in Weiteveen.

Op deze locatie wordt de pluimveehouderij gesaneerd om de natuurkwaliteit in het Natura-2000 gebied Bargerveen te verbeteren.

Contact specialist Bekijk hier andere projecten van ruimtelijk ordening

Herbestemming Weiteveen

Dit project wordt uitgevoerd op initiatief van de provincie Drenthe en in overleg met de gemeente Emmen. Wij hebben de ondernemer mogen begeleiden in de onderhandelingen met gemeente en provincie. Daarnaast hebben wij de herbestemming, landschappelijke inpassing en externe onderzoeken op het gebied van bodem, ecologie en geluid op ons genomen.

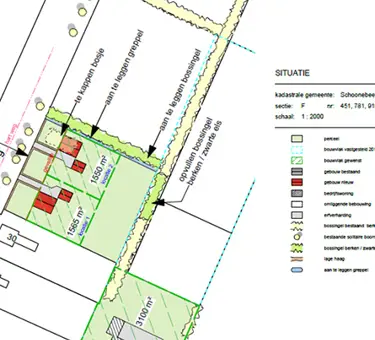
Er heeft inmiddels een voorontwerpbestemmingsplan ter inzage gelegen. In het nieuwe jaar wordt het ontwerpbestemmingsplan ter inzage gelegd. Onderdeel van de plannen is de realisatie van twee woningen aan de rand van het Bargerveen.

Het Natura 2000-gebied Bargerveen is het grootste in de hoogveenrestanten van Nederland. Voor de kwaliteit en ontwikkeling van hoogveengebieden zijn de hydrologische omstandigheden een belangrijke factor. In een groot deel van het hoogveengebied is de stijghoogte van het grondwater te laag voor de ontwikkeling van actieve hoogvenen. Om die ontwikkeling mogelijk te maken zijn aanvullende maatregelen binnen en buiten het Natura 2000-gebied noodzakelijk.

In het beheerplan is de beëindiging van de pluimveehouderij opgenomen als herstelmaatregel voor het natuurgebied, het bedrijf was een zogenaamde piekbelaster op het natuurgebied. Met de beëindiging van de pluimveehouderij wordt een stikstofbron nabij het natuurgebied weggenomen, hiermee draagt dit plan bij aan de instandhoudingsdoelstellingen van het Natura 2000-gebied Bargerveen.


Dit plan heeft bijgedragen aan het verminderen van de stikstofbelasting op het Natura-2000 gebied Bargerveen en, gedurende het complexe onderhandelingsproces met gemeente en provincie, is de ondernemer ondersteund door adviseurs van Agra-Matic. Het onderhandelingsproces heeft geleid tot een herbestemming van het voormalige pluimveebedrijf naar wonen en natuur. Wij vertrouwen erop dat dit plan in 2021 wordt vastgesteld door de gemeenteraad van Emmen.

Contact adviseurs Agra-Matic

Benieuwd naar hoe we jou kunnen helpen? Neem dan vrijblijvend contact met ons op! Bel ons op 0318 - 675 401 of vul het contactformulier in.

Mark de Jong

Adviseur Ruimtelijke Ordening